Доставка по всей России!
Завод РиНМ осуществляет выпуск резервуаров, аппаратов и емкостей различного назначения. У нас можно заказать резервуар нержавеющий РГС-3 м3
Организуем доставку вашего заказа в любой регион РФ. Чтобы оформить заявку или узнать подробнее об условиях оплаты и доставки, свяжитесь с нашим менеджером.
Резервуары горизонтальные объемом 3 м³, изготовленные из коррозионностойкой, жаростойкой и жаропрочной стали, применяются для хранения и раздачи нефти, продуктов нефтепереработки, других химически активных сред.
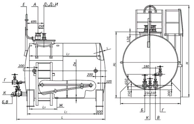
Основными элементами конструкции РГС-3 м3 являются цилиндрический корпус, внутренние кольца жесткости, торцы (днища), опоры, лестница и площадка с ограждениями. Резервуары комплектуются дыхательной арматурой, уровнемерами, пробоотборниками, датчиками давления и температуры. РГС, предназначенные для эксплуатации в северных районах, проектируются со встроенными или погружными подогревателями, системой подогрева из греющего кабеля. Чтобы поддерживать заданный уровень температуры внутри корпуса, РГС изготавливаются с наружной теплоизоляцией минераловатными плитами, вспененным каучуком, пенополиуретаном. Марка нержавеющей стали согласуется с заказчиком при оформлении заказа.

| Параметры | Значения |
|---|---|
| Рабочая среда | токсичные, взрыво- и пожароопасные жидкости класса опасности IV по ГОСТ 12.1007-76, категории 11A по ГОСТ Р 513330.11-99 и Т3 по ГОСТ Р 51330.5-99 |
| Теплоноситель в теплообменнике | нетоксичная, пожаро- и взрывобезопасная жидкость |
| Рабочее давление | налив |
| Рабочее давление в теплообменнике | 0,4 МПа |
| Диапазон рабочих температур | от 0°С до +90°С |
| Диаметр корпуса, DB | 1430 мм |
| Длина корпуса, L | 2600 мм |
| Расстояние между опорами, L1 | 1980 мм |
| Длина цилиндрич. части, L2 | 2000 мм |
| Расст.до дренажного штуцера, L3 | 720 мм |
| Толщина днищ и стенок корпуса, S/S1 | от 4,0 до 10,0 мм |
| Ширина конструкции, В | 1750 мм |
| Высота конструкции, Н | 2890 мм |
| Высота конструкции при транспортировке, Н1 | 1960 мм |
| Масса резервуара | 1430 кг |
| Сейсмичность района эксплуатации | 9 баллов (по 12-ти бальной шкале) |
| Гарантийный срок эксплуатации | 2 года |
| Расчетный срок службы | 20 лет |
Чтобы сделать заявку или получить консультацию специалиста, обратитесь к нашему менеджеру. Связаться можно любым удобным способом — позвоните по телефону +7 (851) 227-73-81 или напишите нам на электронную почту astrahan@rezervuar-met.ru. Наш представитель свяжется с вами для уточнения деталей заказа, сориентирует по срокам, ответит на все возникшие вопросы.
Цены от производителя
Гарантия качества
Комплектация объектов под ключ
Производим монтаж/демонтаж
Оперативная доставка в любой регион
Быстрые сроки поставки,
четкое соблюдение сроков
Персональный подход
Гарантийное обслуживание
Разработка КМД от 2-х
рабочих дней
Составление КП от 15 минут
Подготовим коммерческое предложение
с учетом ваших индивидуальных технических требований
Чтобы избавить Вас от необходимости поиска логистической компании, мы готовы взять на себя работу по осуществлению доставки оборудования на Ваш объект.
Преимущества осуществления доставки при помощи нашей компании:
Свяжитесь с нашим менеджером по телефону или через форму сайта и мы подготовим для Вас расчет.